“Có vài cảm giác về không gian chúng tôi đã thấy được ở đâu đó – màu xanh thiên nhiên đập vào mắt mỗi sáng sớm, tiếng lá xào xạc vào mỗi buổi khuya. Những cảm giác này được chúng tôi đem đến cho khu biệt thự qua một thiết kế mới, ngôi nhà cho một gia đình 3 thế hệ –
những người yêu thích thiên nhiên và sự tươi mát. Thông qua việc giao tiếp với tự nhiên ở mọi thời điểm, con người và cây xanh trở nên gần gũi hơn, không gian mở ra nhưng vẫn có được sự riêng tư cần thiết. Đó là vấn đề đặt ra cho những không gian đông đúc, khói xe hiện nay.”

Một ngôi nhà có lẽ cần có giải pháp thiết kế để tạo sự riêng tư tối đa cho người sử dụng mà không ảnh hưởng tới tầm nhìn cũng như sự tự do của họ trong chính ngôi nhà của mình.”

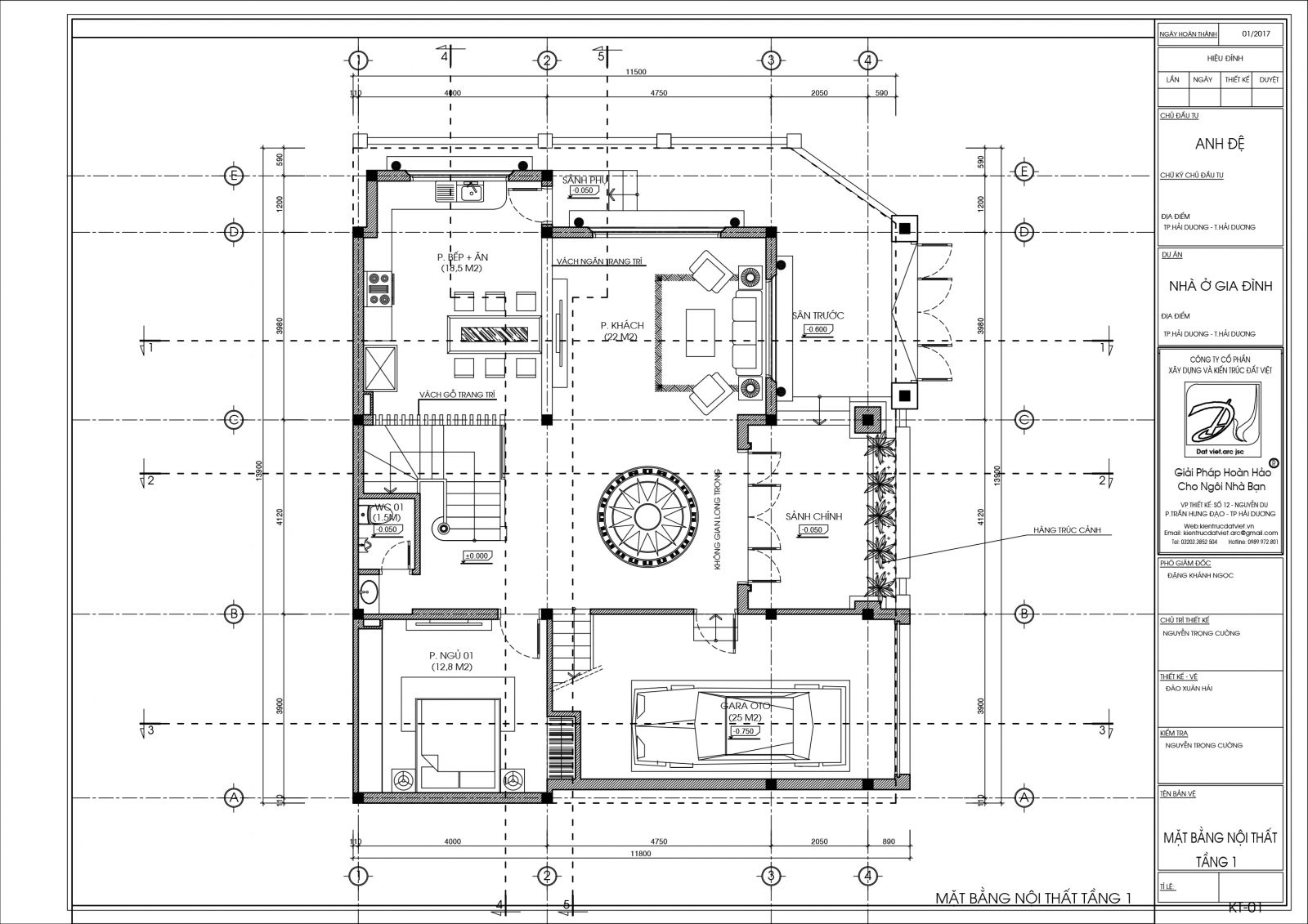
à một thiết kế biệt thự đẹp hiện đại nằm trên khu đất 470 m2 với hơn 50% diện tích dành cho tự nhiên. 50% đó được đóng mở khéo léo thông qua những vách ngăn để con người có được cảm giác cây xanh ở khắp mọi nơi. Diện tích mặt nước được thiết kế xen kẽ cây xanh tạo cảm giác thân thiện và hình thành một không gian nghĩ dưỡng thực sự trong cuộc sống đô thị hiện đại, giúp cho những người sống trong công trình cảm nhận được sự liên kết với thiên nhiên.

Những vách ngăn kết thúc khoảng sân vườn để tạo sự riêng tư đồng thời đảm nhận vai trò kiến tạo không gian chức năng kế tiếp. Ánh nắng len lỏi đổ bóng xuống thềm nhà tạo nên nhiều góc nhìn mới lạ, ranh giới giữa trong và ngoài nhẹ nhàng để con người có thể cảm nhận trọn vẹn sự thay đổi của tự nhiên. Những “mảng xanh” là sự đóng mở các không gian giúp đối lưu không khí và làm mát cả toàn bộ không gian sống. Cả ngôi nhà như một cơ thể sống mang sứ mệnh kết nối con người với con người, con người với thiên nhiên.
Công trình biệt thự nhà vườn tạo ra môi trường sống xanh, đem lại cuộc sống tiện nghi và thoải mái cho cả gia đình
Dưới đây là bản vẽ nhà cấp 4 mang vẻ đẹp của 1 mẫu thiết kế biệt thự đẹp, mời các bạn tham khảo.. Mẫu thiết kế nhà cấp 4 đẹp như biệt thự dưới đây vừa mang phong cách hiện đại vừa có những nét rất truyền thống với mái ngói đỏ. Hiện nay, các mẫu nhà cấp 4 đẹp 1 tầng đang là lựa chọn của rất nhiều gia đình ở cả nông thôn và thành thị.
Sở hữu lô đất mặt phố ngang 5m dài hơn 23m; Chị Mỹ mong muốn xây dựng mẫu thiết kế nhà phố 2 tầng 1 tum đơn giản. Với chi phí tầm khoảng 1 tỷ đến 1.2 tỷ; Có không gian tầng trệt trước mắt cho thuê kinh doanh. Vì chị hiện tại là một giáo viên công chức ngành thư viện còn bận bịu công việc. Nhưng cần xây nhà phố 2 tầng 1 tum hiện đại 5x20m mặt tiền trục lộ đường lớn sau này khi về hưu sẽ buôn bán.
Thiết kế biệt thự vườn 1 tầng đẹp thường được lựa chọn để xây dựng trên những khuôn viên đất rộng, vuông. Thay vì những mẫu nhà ống, nhà phố hạn chế về diện tích, cao tầng khó đi lại thì phương án xây dựng không gian thân thiện với môi trường, dễ sử dụng và thuận tiện này được khá nhiều khách hàng ưa thích. Bài viết dưới đây chúng tôi xin giới thiệu đến mẫu biệt thự vườn 1 tầng đẹp mắt với nhiều không gian phòng ốc đáp ứng nhu cầu của gia chủ.